| 华球体育·|(官方)在线官网, |
| 联系人:俞经理 |
| 电 话:0513-88122066 |
| 传 真:0513-86685733 |
| 手 机:13962980627 |
|
|
|
| 产品展示 |
首页 > 产品展示 > 废气净化成套设备 |
|
 |
| |
| |
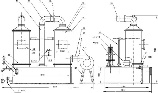
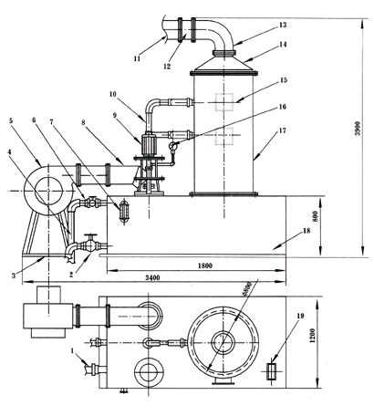
| 泄氯中和处理装置 |
本装置是在吸收引进进口产品的基础上研究和开发的新型泄氯处理装置。该装置采用 PVC+FRP复合材料,保证了系统的耐腐蚀和结构强度。系统选用双塔式结构及特殊设计 的雾化喷咀以及上下层填料的方法,确保了对氯气的充分吸收,尤其适合对大面积的泄 氯处理和吸收。 本装置可以应用到对氯气的连续处理和吸收。 可根据用户工艺、土建要求其设计、配套各类泄氯处理装置。
一、泄氯中和处理装置概述: 由于氯消毒具有杀菌能力强、价格低、投加方便等优点,在各行各业得到了广泛的应用,但氯又是杀伤力很强的有毒气体,在 空气中含3.5~30PPM就会引起喉痛、咳嗽;含40~60PPM在一小时内会对人的生命构成危险;含1000PPM时,则可使人致命, 因而在生产和使用氯的过程中,一旦发生泄氯事故,就会造成严重后果。针对这一情况,我们研制出新一代环保系列产品——泄 氯中和处理装置。本装置是在吸收引进产品的基础上研究和开发的新型泄氯处理装置。该装置采用PVC+FRP复合材料,保证了系 统的耐腐蚀和结构强度;系统选用双塔式结构及特殊设计的雾化喷咀以上下层填料的方法,确保了对氯气的充分吸收,尤其适合对 大面积的泄氯处理;玻璃钢引风机以及防腐液下泵的选用,使得整个系统能长期在含氯气的环境下运行;先进的泄氯报警系统和电 气控制系统使得该系统的先进性能得到进一步的体现和发挥。
二、工作原理: 当发生泄氯事故时,由于氯气比空气的比重大,因而外泄的氯气总是下沉。根据这一现象,我们有引风机通过地面上的引风管 或通过地面以下的引风集气沟,把外泄的氯气抽到中和塔进行处理。在中和塔内,循环碱泵产生的高压碱液由喷咀产生雾化,并 由填料及碱液箱内的四级中和装置进行处理。由于有四级中和,外泄的氯气几乎可被完全吸收,高深度时,吸收效率可达99.5% 以上,低深度时吸收效率可达98%以上。其中和原理是氯气和氢氧化钠反应,生成较稳定的次氯酸钠和水,其化学反应方程式为: Cl2+2NaOH=NaCLO+NaC1+H2O 三、WJ型泄氯中和处理装置的使用和维护: A.WJ型泄氯中和处理装置,配用20%浓度的NaOH溶液,溶液在加入储槽前必须经过120目滤网过滤,防止杂质堵塞喷嘴。 B.应选择适当的风量。风速过快,缩短了中和时间,影响氯的吸收;过快的风速还可能带出部分碱液,污染环境。 C.定期检查报警装置的灵敏度,建议报警设置为1PPM-5PPM之间,自动开启中和装置。 四、基础 A.中和塔基础 中和塔基础尺寸略大于贮液箱的长和宽的尺寸,一般建议大于10%~20%,同时基础应高出地平面,建议尺寸为30~ 50mm。中塔基础采用混凝土预制。 B.风机基础 引风机可分别安装在中和塔后侧,左侧和右侧(订货时应注明),因而引风机基础相应有三个位置,引风机都采用500mm ×500mm,并预埋钢件。 五、WJ-I泄氯中和处理装置技术性能表:
表(一):
|
型 号 |
处理引风 量(m3/h) |
配用风机 |
配用水泵 |
贮槽容量 (m3) |
备 注 |
|
WJ/200 |
800 |
型 号 |
转速 |
功率 (kW) |
型 号 |
功率 (kW) |
2.8 |
1.可选用单塔结构? 2.可根据用户要求定做 |
|
BD4-72 NO4.5A |
1400 |
1.1 |
40FYS-20 |
1.5 |
|
WJ/500 |
2500 |
BD4-72 NO6A
|
1400 |
4.0 |
50FYS-22 |
4.0 |
6 |
|
WJ/1000 |
5000 |
BD4-72 NO8A |
2900 |
5.5 |
50FYS-20 |
5.5 |
8 |
表(二):吸收效率(以高浓度时为例):
|
型 号 |
WJ-I/200 |
WJ-I/500 |
WJ-I/1000 |
备 注 |
|
处理能力(Kg/H) |
200 |
500 |
1000 |
? |
|
进气浓度(mg/m3) |
1000 |
1000 |
1000 |
高浓度 |
|
排放浓度(mg/m3) |
<3 |
<3 |
<3 |
|
处理效率(%) |
≥99.7% |
≥99.7% |
≥99.7% |
|
进气浓度(mg/m3) |
54.6 |
82.4 |
68.2 |
低浓度 |
|
排放浓度(mg/m3) |
0.64 |
0.78 |
0.59 |
|
吸收率(%) |
98.84% |
99.05% |
99.13% |
表(三):设备安装尺寸及重量:
|
型 号 |
WJ-I/200 |
WJ-I/500 |
WJ-I/1000 |
备 注 |
|
碱液罐长mm |
1800 |
2800 |
3600 |
可根据用户要求定做 |
|
碱液罐宽mm |
1200 |
1800 |
2200 |
|
碱液罐高mm |
800 |
1000 |
1000 |
|
设备总高mm |
3900 |
3900 |
3900 |
|
吸气管直径mm |
200或 250 |
300 |
350或400 |
PVC或FRP |
|
排放管直径mm |
200或 250 |
300或350 |
350或400 |
PVC或FRP |
|
反应塔直径mm |
800 |
1000 |
1400 |
PVC或FRP |
|
设备自重(kg) |
1010 |
1482 |
1820 |
实际使用时,可能有部分误差 |
|
加碱后重量(kg) |
2642 |
6882 |
10224 |


|
|
|
|
|
|